Heavy Duty Fire Rated Concealed Leaf Aluminum Full Mortise Continuous Geared Door Hinge

Customization: Available
After-sales Service: Online Technical Support
Warranty: 1 Year

Product Description

Product Overview

Model NO.
CGH1083
Type
Continuous Geared Door Hinge
Material
Aluminum
Finish
Clear Aluminum/Dark Bronze Anodized
Normal Size
83"/95"/119"/Customized
Max. Weight
75kgs
Feature
Easy Installation, Fire Rated
Package
Bubble Bags + Carton

Product Description

🛡️ Heavy Duty Fire Rated Concealed Leaf Aluminum Hinge
SpecificationDetails
Item No.CGD1083
Mounting TypeFull Mortise / Door Mount
Loading Weight75 KGS
Warranty3-Year Warranty
ApplicationApartment, Commercial High-Traffic Doors
Continuous Geared Hinge Banner
Product View 1
Product View 2
Product View 3
💡 Key Features & Benefits
  • Door Reinforcement not required
  • Includes Dril-Kwik screws and sex bolts
  • Fire rating up to 3 hr. metal and 90 min. wood composite
  • Prevents fingers from being pinched - enhanced safety
  • Distributes door weight along the entire length of the frame to prevent sagging

The Continuous Geared Hinges are designed to last the life of a building. The unique design reduces the high amount of stress normally associated at the top of the door and frame on butt hinge applications. This keeps the door in constant alignment and eliminates the chance of door sag, making it ideal for high-use environments.

Technical Data & Dimensions

Length (inches) Length (mm) Hole Count (Door) Hole Count (Jamb)
8321081919
9524132020
11930232323
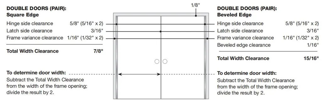
📏 Calculating Door Clearances
Clearance Calculation 1
Clearance Calculation 2

Note: All standard length hinges are supplied slightly shorter than nominal door height to avoid threshold or flooring clearance problems.

Product Variations & Display

Door Show 1
Door Show 2
Product Categories
Product Categories
Optional Finishes
Optional Finishes

Quality Assurance

Certifications
Production Capacity

Frequently Asked Questions

How can I obtain samples of the continuous hinges?
You can place a sample order through our trade channels. Samples are typically prepared and ready for dispatch within 3 to 5 working days.
What color finishes are available for these hinges?
We offer a wide range of finishes including Satin, Polished, Satin Nickel, Bright Chrome, Gold, Matt Black, and Satin Graphite to match your project's design style.
Can the hinges be customized to specific requirements?
Yes, we provide customization options for logos, specific colors, materials, and specialized surface treatments to meet your unique architectural needs.
Is customized packaging available for bulk orders?
Absolutely. For orders meeting a certain quantity, we can provide customized color boxes and specialized instruction manuals.
What are the standard payment terms for orders?
Our standard terms include T/T and other trade assurance methods. Other payment terms are negotiable depending on the order volume and history.
How long does it take to receive a formal quotation?
We typically process and provide detailed quotes within 24 hours of receiving your specific requirements and quantities.

Related Products