180 Degree Heavy Duty Continuous Geared Aluminum Hinge Concealed Leaf Design for Modern Door Usage

Still deciding? Get samples of $ !
Request Sample

Product Description

Basic Specifications
Type
180° Hinge
Finish
Anodized
Material
Alloy / Aluminum
Standard Length
2.85m
Color
Black / Silver
Swings
2
Custom Length
Available
Package
Wood Box
Specifications
84"/96"/120"
Origin
China
HS Code
7604299000
Capacity
100,000/Year
Product Description

Fire Rated Concealed Leaf Full Mortise Continuous Geared Door Hinge

  • Door Reinforcement not required
  • Includes Dril-Kwik screws and sex bolts
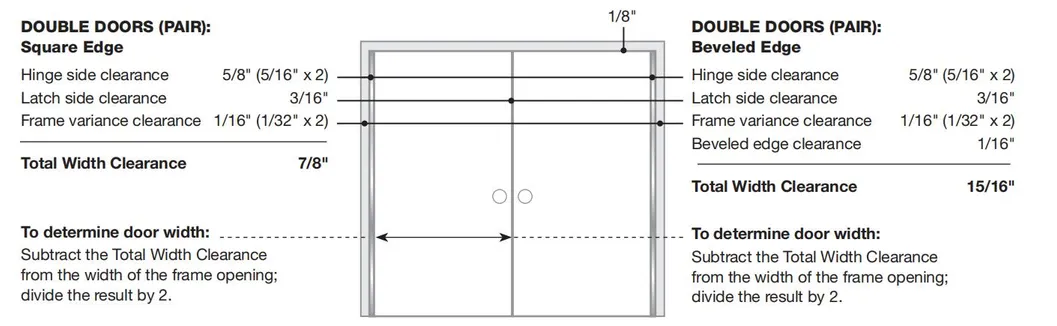
  • Standard lockside clearance
  • Fire rating up to 3 hr (metal) / 90 min (wood)
  • 3 years warranty
  • Safety design prevents finger pinching

The Continuous Geared Hinges are designed to last the life of a building by distributing the weight of a door along the entire length of its frame. The unique design reduces the high amount of stress normally associated at the top of the door and frame on butt hinge applications. Not only does this reduce hinge failure, it also keeps a door in constant alignment, eliminating the chance of door sag.

These characteristics make continuous hinges suitable for high-use and high-traffic doors. The geared continuous hinge has no pin. Instead, these hinges utilize a single gear section for the leaf and a separate gear section for the frame side of the door. The design of a continuous hinge eliminates the spacing between the hinges, which helps prevents fingers from being pinched, making it a safer device than traditional hinges.

Technical Details
Product Name Continuous Geared Hinges Material Aluminum
Max. Weight 75kg+ Surface Finish Anodized / Powder Coated
Opening Angle 180 Degree Style Classic / Modern
Certification ISO9001, ROHS Lead Time 30 Days
Continuous Geared Hinge 1
Continuous Geared Hinge 2
Continuous Geared Hinge 3
Length (inches) Length (mm) Sex Bolts (Door) Pan Head (Door) Screws (Jamb)
83210881919
952413101920
1193023122323
Technical Drawing
Hinge Profile
Hinge Detail
Installation 1
Installation 2
Product Range
Color Option Black
Color Option Silver
Application View 1
Application View 2
Application View 3
Detail Close up 1
Detail Close up 2
Large Technical Spec
Factory Overview
Processing 1
Processing 2
Quality Control
Testing 1
Testing 2
Packing 1 Packing 2
Frequently Asked Questions
What are the main benefits of using a continuous geared hinge?
Continuous geared hinges distribute the door's weight along the entire length of the frame, preventing door sag and reducing stress on the top of the frame, making them ideal for high-traffic areas.
Are these hinges fire-rated?
Yes, these hinges carry a fire rating of up to 3 hours for metal doors and 90 minutes for wood composite doors when installed with proper studs.
What materials and finishes are available?
The hinges are made from high-quality aluminum alloy and are available in Anodized or Powder Coated finishes in silver, black, or customized colors.
Is special door reinforcement required for installation?
No, door reinforcement is not required for these hinges. They come with Dril-Kwik screws and sex bolts for straightforward installation.
How does the "finger pinch protection" work?
The geared design eliminates the gap between the door and the frame that is usually found in traditional hinges, preventing fingers from being caught in the opening.
Can I order custom lengths?
Yes, while standard lengths are 83", 95", and 119", we offer customization for other specific length requirements.

Related Products