Door Hardware Heavy Duty Fire Rated Concealed Leaf Aluminum Full Mortise Continuous Geared Door Hinge

Customization: Available
After-sales Service: Online Technical Support
Warranty: 1 Year

Product Description

📋

Basic Specifications

Model NO.
CGH1083
Type
Continuous Geared Door Hinge
Material
Aluminum
Normal Size
83"/95"/119"/Customized
Max. Weight
75kgs
Certification
ISO9001
Finish
Clear Aluminum/Dark Bronze Anodized
Design Style
Traditional
🛡️

Product Overview

Heavy Duty Fire Rated Concealed Leaf Aluminum Full Mortise Continuous Geared Door Hinge

The Continuous Geared Hinges are designed to last the life of a building by distributing the weight of a door along the entire length of its frame. The unique design reduces the high amount of stress normally associated at the top of the door and frame on butt hinge applications.

✨ Door Reinforcement not required
🛠️ Dril-Kwik screws and sex bolts
🔥 Fire rating up to 3 hr. metal
🛡️ 3 years warranty
🖐️ Prevents fingers from being pinched
📏 Standard lockside clearance
Length (inches) Length (mm) Hole Count (Door) Hole Count (Jamb)
8321081919
9524132020
11930232323
🖼️

Detailed Images

📐

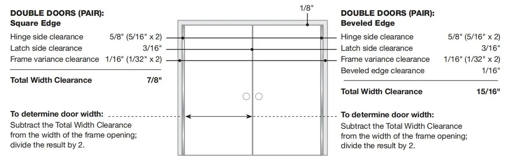
Calculating Door Clearances

IMPORTANT: All standard length hinges are supplied slightly shorter than nominal door height to avoid threshold or flooring clearance problems.
Clearance Calculation Diagram
Door Clearance Table
🚪

Application Showcase

🌈

Optional Finishes & Categories

Product Categories
Optional Finishes
📜

Quality Certifications

Certifications Chart

Frequently Asked Questions

How can I get samples for testing?
Sample orders can be processed quickly and are typically ready in about 3 to 5 working days.
What finishes and colors are available for the hinges?
We offer a wide range of finishes including Satin, Polished, Satin Nickel, Bright Chrome, Gold, Matt Black, and Satin Graphite.
Is it possible to customize the product logo and material?
Yes, we provide full customization options for your logo, color, choice of material, and specific surface treatments.
Do you offer customized packaging for large orders?
Certainly. We can provide customized color boxes and instruction manuals if the order meets our minimum quantity requirements.
What are the standard payment terms?
Our standard terms are T/T or Trade Assurance. Other payment methods are also negotiable based on the project.
How long does it take to receive a formal quotation?
We usually provide a comprehensive quote within 24 hours of receiving your detailed inquiry.

Related Products