Clear Full Surface Half Mortise Swing Clear Concealed Aluminum Geared Continuous Hinges

Still deciding? Get samples of $ !
Request Sample

Product Description

Basic Information
Model NO. customized
Type 180° Hinge
Material Aluminum Alloy
Finish Anodized
Specification 83"/95"/119"
Production Capacity 500,000/Year
Product Description

Full Surface Half Mortise Swing Clear Wide Throw Concealed Aluminum Geared Continuous Hinges

Product NameContinuous Geared Door Hinge
Item No.1083
MaterialAluminum
FinishedBright Anodize, Black, Dark Bronze
Mounting TypeDoor Mount
Normal Size83"/95"/119"/Customized
Loading Weight75KGS
Warranty10 Year Warranty
Aluminum Geared Continuous Hinges 1
Aluminum Geared Continuous Hinges 2
Detail 1
Detail 2
Detail 3
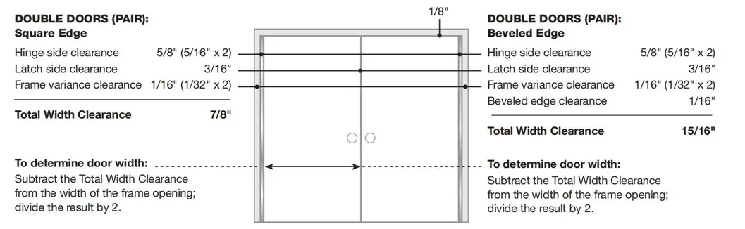
Technical Dimensions & Applications
Technical Drawing
Specifications Diagram
Installation 1
Installation 2
Installation 3
Color Options 1
Color Options 2
Structure Detail
Production View 1
Production View 2
Frequently Asked Questions
Q: What is a continuous geared hinge?
A: It is a door hinge that runs the full height of the door, using a series of interlocking gears to provide smooth movement and distribute the door's weight evenly.
Q: What are the standard sizes available?
A: Our standard lengths are 83", 95", and 119". We also offer customized sizing to meet specific project requirements.
Q: What is the load-bearing capacity of these hinges?
A: These aluminum geared hinges are designed to support a loading weight of up to 75KGS.
Q: Are different finishes available for matching door hardware?
A: Yes, we provide Bright Anodize, Black, and Dark Bronze finishes to complement various architectural styles.
Q: Is there a warranty for this product?
A: We offer a comprehensive 10-year warranty, ensuring long-term durability and performance for your door systems.
Q: What materials are used in construction?
A: The hinges are manufactured from high-quality aluminum alloy with an anodized finish for superior corrosion resistance and strength.

Related Products